Praktisk information

Hver beboer får ved indflytning udleveret tre nøglebrikker til boligen, hvoraf de to evt. kan udlånes til pårørende eller gæster. Nøglebrikken anvendes både til egen bolig og for at komme ind på selve Falkenberg, uden for daglig åbningstid som er fra kl. 7.00 – 16.00.

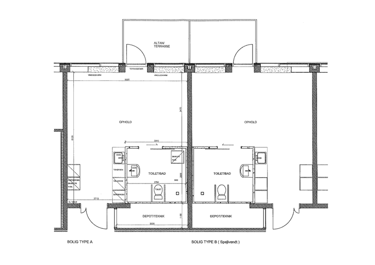
Plejehjemmet Falkenberg har 74 boliger på ca. 45 m2 hver især inklusiv gangarealer, selve boligen er ca. 38 minklusiv et lille depotrum på knap 3,5 m2. Boligerne har eget badeværelse og tekøkken inklusiv et aflåst medicin- og værdiskab.
De fleste af boligerne har egen altan eller terrasse.

Plantegning bolig

Kan du ikke se plantetegningen er du velkommen til at henvende dig til Plejehjemmet Falkenberg.

Mål på terrassedør, vinduer samt evt. altan i boligerne

  • 3 vinduer er 140 cm. bred og 75 cm. høj
  • Terrassedør er 99 cm. bred og 238 cm. høj
  • Altan er 303 cm. bred og 188 cm dyb

Mappen om Drift og vedligehold af boliger på Plejehjemmet Falkenberg, kan udleveres til låns, ved henvendelse til viceværterne på Falkenberg.

Pjecen Husorden kan udleveres til låns, ved henvendelse til viceværterne på Falkenberg.

Indskud og husleje opkræves af Boliggården.

Betaling for samtlige ydelser er fastsat af Helsingør Kommune.

Plejehjemmet Falkenberg opkræver servicepakkeydelsen, bestående af forplejning, dagcenterkontingent, rengøringsartikler, leje og vask af linned, samt forsikring.
Vi anbefaler alle beboere at tilmelde aftalerne til Betalingsservice (PBS), hvilket Plejehjemmet Falkenberg kan være behjælpelige med.

Boligen på plejehjemmet Falkenberg lejes af boligselskabet Boliggården. I forbindelse med indflytningen udleverer Boligselskabet nøglebrikker og orienterer nye beboere om forhold vedrørende betaling af husleje, varme, el, husorden, vaskeri og vinduespudsning mv.
Der skal underskrives en boligkontrakt med boligselskabet Boliggården. Hvis nye beboere har behov for hjælp i den forbindelse, kan Helsingør Kommunes pensionistvejleder kontaktes via Borgerservice på telefon 49 28 28 28.

Når du flytter ind på Falkenberg, holder vi en indflytningssamtale, og efter ca. 3 måneder en op følgende samtale. 

Når du, eller din pårørende, er blevet visiteret til Plejehjemmet Falkenberg, har vi i forbindelse med indflytningen brug for oplysninger fra dig. Det handler blandt andet om valg af kost- og serviceydelser, lægevalg og samtykkeerklæringer mv., som der findes en digital selvbetjeningsløsning til.

Du eller din pårørende vil modtage en vejledning til selvbetjeningsløsningen. Når der er udfyldt med de påkrævede oplysninger, skriver du under enten med dit MitID, eller via underskrift på skærmen med din finger eller mus.

Oplysningerne sendes digitalt og sikkert til Helsingør Kommune, og opbevares efter gældende regler.

Har du som kommende beboer ikke mulighed for, at få hjælp fra pårørende til at udfylde selvbetjeningsløsningen, kan plejehjemmet straks efter indflytningen naturligvis hjælpe dig.

Pjece - Praktiske oplysninger 2025

Plejehjem tilbydes borgere, som er afhængige af pleje og omsorg flere gange i døgnet, og hvor plejen ikke kan gives i anden bolig. Plejehjem henvender sig ikke til brugere med behov for psykiatrisk plejehjem.

For at få en plejehjemsplads skal du visiteres af din bopælskommune. Følgende kriterier skal være opfyldt:

  • Du har varig nedsat fysisk og/eller psykisk funktionsevne og har behov for hjælp og støtte hele døgnet. Du vil ikke være afhjulpet med dagtilbud eller aflastning.
  • Du har behov for hjælp mere end otte gange i døgnet, eller du kan ikke være alene mellem besøgene. Eventuelle pårørende kan ikke varetage omsorgen mellem besøgene.

Der er frit plejehjemsvalg i Danmark.
Det betyder, at uanset hvor man bor, kan man flytte på plejehjem over hele landet.

Hvis plejehjemmet ikke ligger i ens egen kommune, skal man også godkendes af den kommune plejehjemmet ligger i.

Det er muligt at se Plejehjemmet Falkenberg, inden du siger ja tak til en tilbudt bolig.
Book en rundvisning på telefon 49 28 15 01 mellem kl. 9.00 til 14.00 mandag til fredag.

Kombineret ansvars- og løsøreforsikring tegnes efter aftale med Helsingør Kommune. Præmien betales til kommunen månedligt, og aftales for en fuld måned ad gangen. Ændringer skal således meddeles i receptionen på Falkenberg mindst en måned før ændringer ønskes at træde i kraft.
Forsikringen omfatter to dele, som ikke kan tegnes uafhængigt af hinanden.
Indboforsikring dækker ved brand, vandskade, indbrudstyveri og simpelt tyveri.
Ansvarsforsikring dækker ved ansvarspådragende handlinger.
Ved flytning fra Falkenberg ophører forsikringen efter 14 dage.
Forsikringen dækker ikke dødsbo.

I alle boliger på plejehjemmet Falkenberg findes et indbygget værdiskab. Det forventes at beboerne selv og/eller eventuelle pårørende administrerer anvendelsen af værdiskabet.
Såfremt plejehjemmet/medarbejderne skal bistå beboeren i administration af værdier i skabet, er det af sikkerhedsmæssige årsager udelukkende plejehjemmet der har adgang til værdiskabet.
Vi anbefaler, at der ikke opbevares store kontante beløb, smykker samt andre værdier i boligen.

Plejehjemmet Falkenberg er røgfri på hele matriklen!

Det vil sige, at alle steder på plejehjemmet hvor mennesker mødes for eksmpel på alle fællesarealer både inde og ude, 

  • fælles altaner og terrasser i Boligdelen/Enhederne
  • Sansehaven
  • terrasserne ud for de to dagcentre samt den store terrasse foran caféen på Torvet i Centerdelen.

Medarbejderne tilbyder alle nye beboere på plejehjemmet en samtale om rygning generelt og herunder hjælp til rygestop.
Ønsker beboeren at forsætte med at ryge, bistår medarbejderne gerne ved indkøb af flammehæmmende tøj, for at begrænse
omfanget af brandskader hvis uheldet er ude.

Plejehjemmet er en røgfri arbejdsplads. Beboerne kan dog ryge i egen bolig. 

Dit hjem - medarbejderens arbejdsplads

  • For at undgå forurenende tobaksrøg inde i boligerne anbefales, at
    beboere og deres gæster ryger ude på egen altan/terrasse, af
    hensyn til alle beboernes trivsel og medarbejdernes arbejdsmiljø.
  • Hvis beboere/gæster ryger inde i boligen, skal døren til boligen
    ALTID holdes lukket - også når der ikke ryges.
  • Lukkede døre til boliger hvor der bor rygere, begrænser omfanget
    af forurenende røggener som naboer, medarbejdere med flere
    udsættes for.
  • Der skal ALTID luftes ud efter rygning.
  • Beboeren må ikke ryge, når der er medarbejdere i boligen.
  • Beboeren og medarbejderen er sammen ansvarlige for, at der
    luftes ud i mindst 10 minutter inden arbejdet i boligen begyndes.
  • Det er meget farligt at ryge i sengen, derfor frarådes det på det
    kraftigste både af hensyn til rygeren, naboer og medarbejdere.
  • Flammehæmmende sengetøj og rygestykke skal anvendes hvis
    beboeren alligevel vælger at ryge i sengen.
  • Hvis beboeren skal bruge hjælp for at kunne ryge, kan dette kun
    ydes af medarbejderne i begrænset omfang, f.eks. ved at tænde
    tobakken og gå, eller når rygningen foregår udendørs på egen
    altan/terrasse eller på gåture uden for matriklen.
  • For at sikre arbejdsmiljøet tilbydes medarbejderne værnemidler
    som beskyttelse mod tobaksrøg.
  • Der er røgalarmer i alle boliger og på alle Falkenbergs fællesarealer.

Gæster der kommer uden for daglig åbningstid, kan benytte sig af den grå indgangsdør til venstre for hovedindgangen, både med nøglebrik eller ved at benytte dørtelefonen. OBS benyttes dørtelefon, vær da opmærksom på at der kan være ventetid på at døren åbnes, da denne betjenes af plejepersonalet i enhederne, som kan være optagede af beboerrelaterede opgaver.

På Falkenberg har vi et lille udvalg af Kiosk varer. Målet for kiosken er at sælge lige netop det, du som beboer har brug for i hverdagen. Derfor er det vigtigt, at du fortæller os, hvis du har ønsker til udvidelse af sortimentet. Vi sælger ikke aviser, ugeblade, cigaretter og friske blomster. Se udvalget af varer i kiosken ved Caféen.

Når en beboer flytter eller afgår ved døden, er det de pårørende, der står for at pakke beboerens ting ned og opbevare dem.

Pårørende er ansvarlige for at boligen tømmes så hurtigt som muligt. Boligen skal være tømt senest på 3. dagen efter begravelse/bisættelse.

Personalet optæller afdødes indbo og værdigenstande, som befinder sig i boligen på dødstidspunktet, og sender opgørelse til Skifteretten, dog ikke når der er ægtefælle.